无为24小时品茶QQ,佛山喝茶论坛,泸州耍耍网品茶工作室

Equipment manufacturing

设备制造

您的位置: 首页 > 业务体系 > 设备制造 > PCS垂直升降
PSH升降横移 PXD巷道堆垛 PPY平面移动 PCS垂直升降 PQS汽车升降机 PCX垂直循环 PDX多层循环 PJS简易升降 配套工程
设备特点

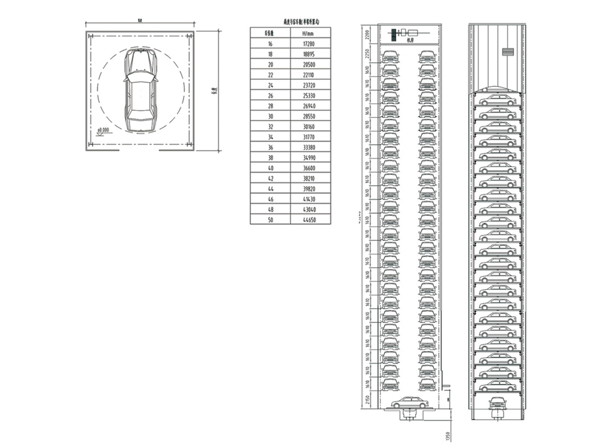
占地少,立体发展,尽显空间优势。
多样化设计,满足顾客需求。可根据场地不同设置为单座、多座,多种组合形式。
采用内藏式转盘,实现了快速畅通安全的前进出入车库。
采用全电脑自动控制,自动感应操作,更安全,更方便。

产品概述

垂直升降类停车设备车库中间是载车板(车辆)垂直运行通道,在通道两侧 每层各设置一个停车位,通过升降机将载车板(车辆)升到指定层,然后由 存取横移机构将车辆或载车板横移,实现存取车辆的机械式停车库。也称电 梯式、塔式。一套系统最多可建30层,停放60辆车。

产品分类

主站蜘蛛池模板: 淄博市| 宿州市| 泰来县| 庆云县| 东台市| 台南县| 桐庐县| 高碑店市| 调兵山市| 城固县| 于田县| 军事| 邹城市| 托克逊县| 拉萨市| 金秀| 比如县| 湛江市| 甘洛县| 成武县| 东辽县| 文山县| 中西区| 甘孜县| 巴彦淖尔市| 芦山县| 永善县| 松江区| 双城市| 丹东市| 武平县| 义乌市| 巨鹿县| 库尔勒市| 红安县| 宣城市| 甘洛县| 安溪县| 洛宁县| 潍坊市| 东乌珠穆沁旗|